186 Day Street

Granby, CT 06035

  • $995,000
  • 4 Beds
  • 3/1 Baths
  • 3,010 Sqft
  • 2.4 Acres
  • 2025 Built

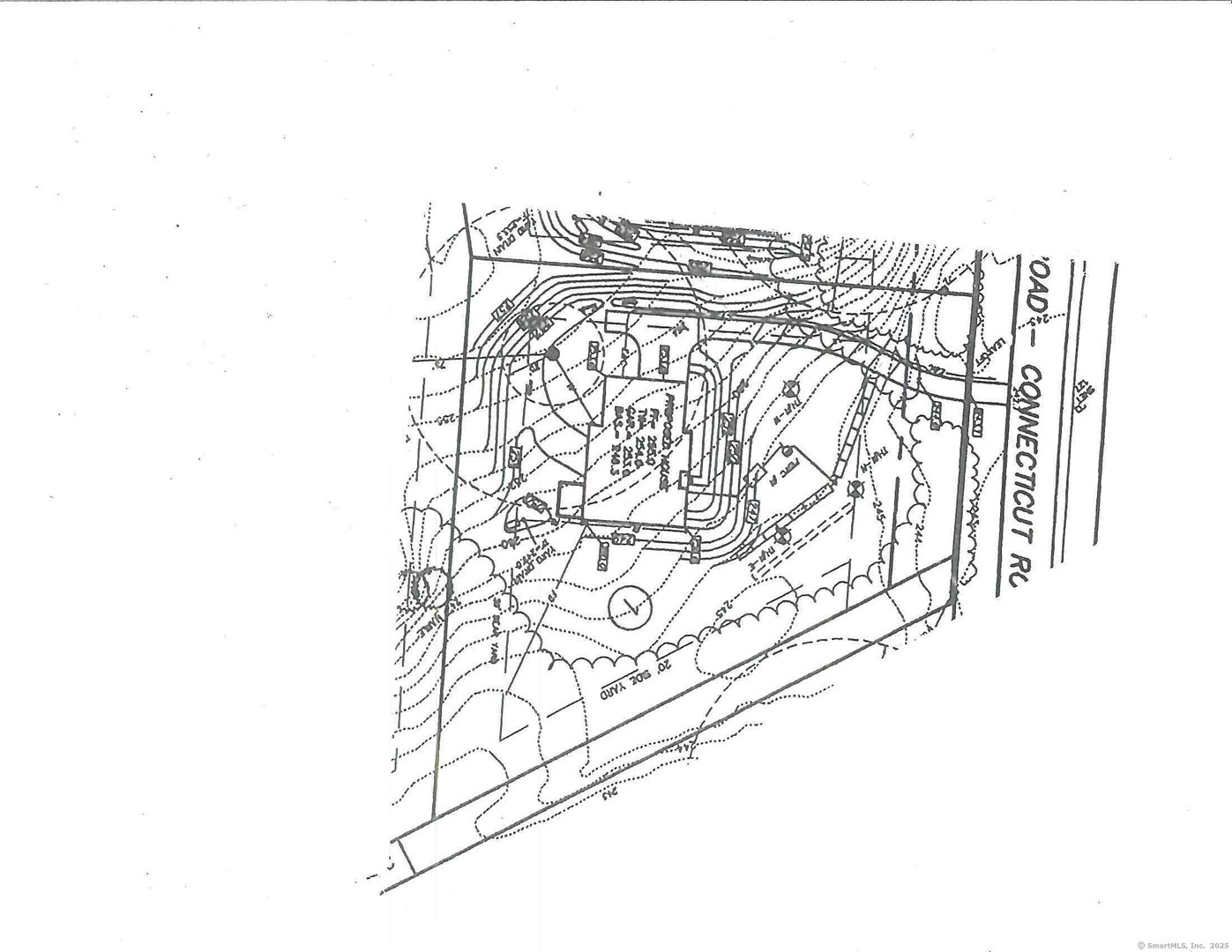
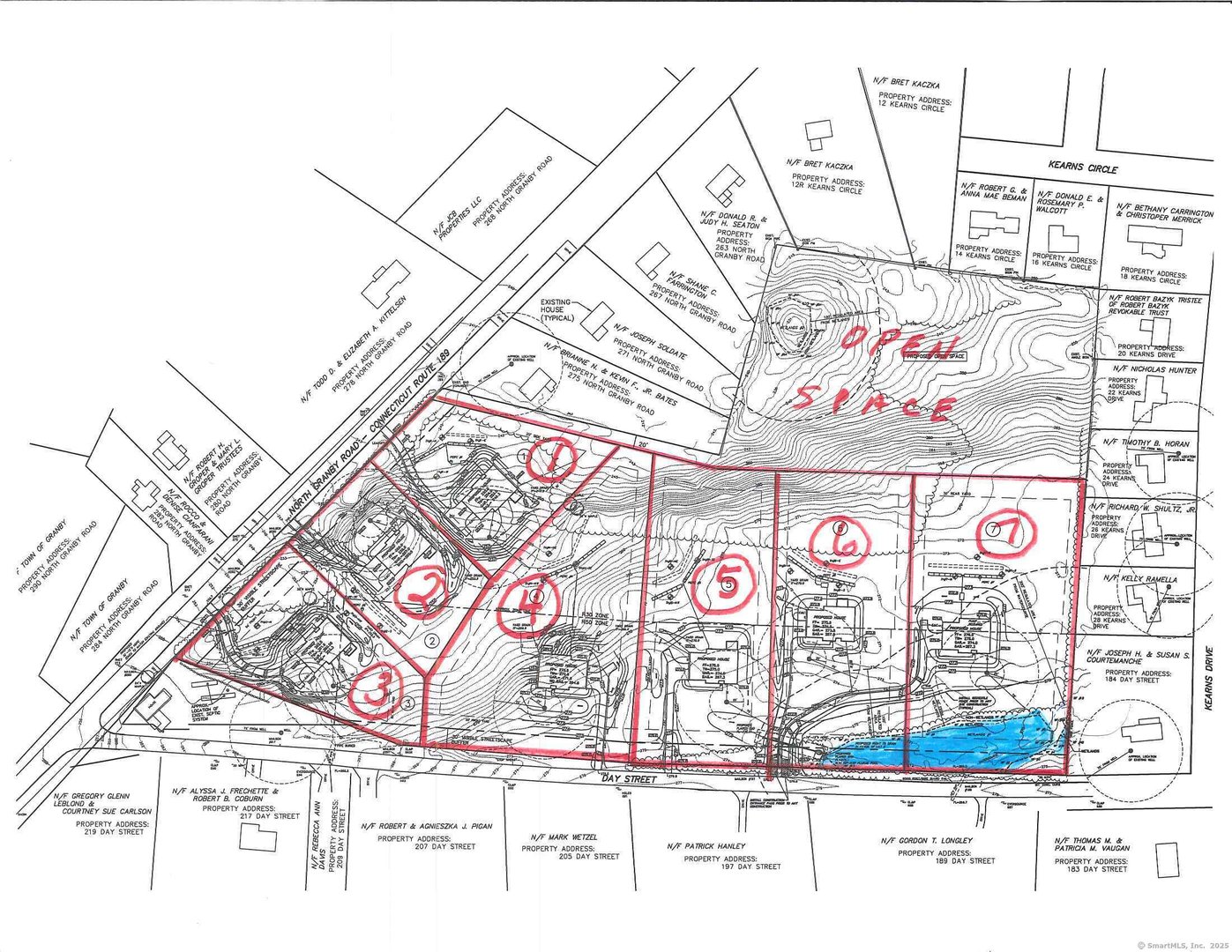
186 day Street is Lot 7. This lot is approved and ready to go. This beautiful flat lot is very private and backs up to permanent open space. This lot is in an open meadow, so no clearing and a lot of design flexibility. There is plenty of room for a swimming pool. We will be happy to meet with you to walk this lot and to discusss the building process. We have suggested several home designs, however, we will work with you to build the custom home that you want. The proposed beautiful Modern Farmhouse has porches galore and a great open floor plan featuring a large first floor Master BR Suite and a first floor office. Our mission is to have you "Live Happily Ever After". These homes will be built by Kirk and Reed MacNaughton of Blue Sky Builders. They have been building custom homes in Northern Connecticut for over 30 years and specialize in upscale energy efficient new homes. Their Blue Sky Energy Saver Branded New Homes represent the "State of the Art" in intelligent, energy efficient new construction. These homes are built tight to minimize outside air flow and are meticulously insulated. These homes feature high performance air sealing and insulation, Energy Star windows, mechanical systems and appliances. Geothermal heating and cooling is an available option. Builder and Broker are affiliated.

READ MORELESS
Property Highlights
  • HIGH SCHOOL : Granby Memorial
  • NEIGHBORHOOD : North Granby
  • PRICE/SQFT : $331
  • DAYS ON MARKET : 464
  • MLS : 24075760

Additional Information

ADDITIONAL INFORMATION
  • ATTIC DESCRIPTION: Unfinished, Access Via Hatch
  • AVERAGE DAYS ON MARKET: 375
  • BASEMENT DESCRIPTION: Full
  • DAYS ON MARKET: 464
  • ELEMENTARY SCHOOL: Per Board of Ed
  • GARAGE: Attached Garage
  • GARAGE COUNT: 3
  • HIGH SCHOOL: Granby Memorial
  • IS OCCUPIED?: Vacant
  • LIVING AREA SQFT: 3,010
  • NEIGHBORHOOD: North Granby
  • SEWER: Septic Required
  • STATUS: Active
  • STYLE: Farm House
  • TAX YEAR: July 2024-June 2025
  • TYPE: Single Family For Sale
  • YEAR BUILT: 2025
  • YEAR BUILT DETAILS: Owner
  • ZONING: Residential
INTERIOR/EXTERIOR FEATURES
  • AIR CONDITIONING: Central Air
  • APPLIANCES INCLUDED: Allowance
  • ATTIC: Yes
  • BEDS: 4
  • COOLING: Central Air
  • EXTERIOR SIDING: Vinyl Siding
  • FIREPLACES: 1
  • FULL BATHS: 3
  • FURNACE TYPE: Propane
  • HALF BATHS: 1
  • HEAT: Propane
  • HEAT FUEL: Propane
  • HOT WATER: Propane, 65 Gallon Tank
  • LAUNDRY ROOM: Main Level, Upper Level
  • LAUNDRY ROOM ACCESS: 1st and 2nd
  • ROOF: Fiberglass Shingle
  • ROOMS: 10
  • TOTAL BATHS: 4

Mortgage Calculator

Years
%/Year
in US Dollars
%
Years

Your Estimated Payment

-- Monthly Payment
  • Down Payment
    Required
    --
  • Mortgage
    Principal
    --
  • Still Owing at the
    End of Term
    --

Location for 186 Day Street, Granby, CT

Community

Granby>

Granby

Hartford County, Connecticut

Granby was once part of Simsbury until it became incorporated in 1723. With close proximity to Bradley International Airport, Granby makes travel a breeze. Granby is home to the Dewey-Granby Oak, a white...

Market Stats for Granby, Connecticut

An exclusive report that informs you of residential real estate sales activity and trends in Granby, Connecticut.

Request More Info for 186 Day Street, Granby, CT

  • Hartford County Regional Brokerage

    45 East Main Street
    Avon, CT 06001
    O

Listing Courtesy of J.K. Macnaughton of ((860) 305-4445)MacNaughton Real Estate (860.653.9327).