• UNDER CONTRACT

100 Mountain Rd

Easthampton, MA 01027

  • $975,000
  • 3,609 Sqft
  • 1.55 Acres
  • 1900 Built
  • $270 Price/Sqft

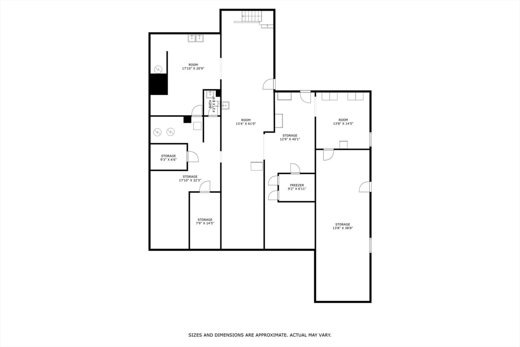
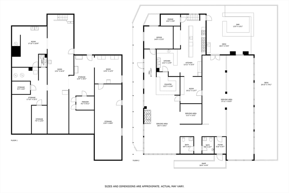
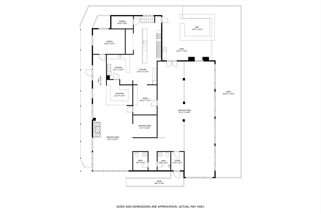
Be the new owner of this landmark restaurant & bar with a million-dollar view. Nestled on the Mt. Tom range with direct access to both Easthampton and Holyoke. Turnkey, fully operational. Sale includes property, business, all FF&E, inventory, and FULL LIQUOR LICENSE. Seats 160 guests. The extensive deck provides seating for 75 with breathtaking views complimented with a full, outdoor bar. The interior contains 3,609 SF of upper level, finished space that includes a large, open dining area, tavern seating, full bar, two bathrooms, and fully equipped commercial kitchen. The lower level (excluded from building area) contains 500 +/- SF of space utilized as a prep kitchen with ovens/stoves, walk-in coolers, prep stations, two commercial smokers, plenty of storage space, and staff bathroom. Central heat and cooling. 3-phase, 200-amp service. Large, paved parking lot with 75 spaces. 2.5 miles to downtown Easthampton, 4 miles to I-91.

READ MORELESS
Property Highlights
  • DAYS ON MARKET : 263
  • MLS : 73419982

Additional Information

ADDITIONAL INFORMATION
  • LIVING AREA SQFT: 3609
  • ON MARKET DATE: 2025-08-20
  • SEWER: Public Sewer
  • TAX AMOUNT: $9,256
  • TAX YEAR: 2025
  • TYPE: Commercial Sale
  • UTILITIES: Natural Gas Available
  • YEAR BUILT: 1900
  • ZONING: Legal Non-Conforming

Mortgage Calculator

Years
%/Year
in US Dollars
%
Years

Your Estimated Payment

-- Monthly Payment
  • Down Payment
    Required
    --
  • Mortgage
    Principal
    --
  • Still Owing at the
    End of Term
    --

Location for 100 Mountain Rd, Easthampton, MA

Community

Easthampton>

Easthampton

, Massachusetts

The Hampshire County city of Easthampton, home to 16,200 residents, is situated on the southeastern portion of the Pioneer Valley.The city’s downtown hub has undergone a demographic shift in recent years...

Market Stats for Easthampton, Massachusetts

An exclusive report that informs you of residential real estate sales activity and trends in Easthampton, Massachusetts.

Request More Info for 100 Mountain Rd, Easthampton, MA

  • William Pitt Sotheby's International Realty

The property listing data and information, or the Images, set forth herein were provided to MLS Property Information Network, Inc. from third party sources, including sellers, lessors, landlords and public records, and were compiled by MLS Property Information Network, Inc. The property listing data and information, and the Images, are for the personal, non-commercial use of consumers having a good faith interest in purchasing, leasing or renting listed properties of the type displayed to them and may not be used for any purpose other than to identify prospective properties which such consumers may have a good faith interest in purchasing, leasing or renting. MLS Property Information Network, Inc. and its subscribers disclaim any and all representations and warranties as to the accuracy of the property listing data and information, or as to the accuracy of any of the Images, set forth herein. Listing Courtesy of Joseph Bialek of Delap Real Estate LLC (413.586.9111).